Denkmalgeschütztes Sanierungsobjekt zu verkaufen. Baugenehmigung für 8 WEs im historischen Ensemble.
Objektart
Adresse
Objektdaten
Informationen
Ausstattung
Details
Willkommen zu einer seltenen Gelegenheit in Dresden-Seidnitz: Dieses imposante Einzeldenkmal unweit der traditionsreichen Galopprennbahn verbindet historischen Charme mit modernem Wohnen. Das um 1895 erbaute, ehemalige Verwaltungs- und Stallgebäude, einst Teil der ersten Sächsischen Pferdezuchtausstellung, steht für ein Stück Dresdner Stadtgeschichte - und wartet darauf, in neuem Glanz zu erstrahlen.
Mit Planung und Abgeschlossenheitsbescheinigung sowie genehmigter Sanierung bietet dieses Objekt sowohl Kapitalanlegern als auch Eigennutzern die Chance, an einem nahezu letzten Sanierungsprojekt dieser Art in Seidnitz mitzuwirken. Die beeindruckende, denkmalgeschützte Bausubstanz vermittelt Individualität und Exklusivität - ideale Voraussetzungen für ein außergewöhnliches Investment.
Derzeit befindet sich das Gebäude im Leerstand und wartet auf seine Verwandlung zum modernen Wohnjuwel. Neben der bereits genehmigten umfassenden Sanierung ist auch ein architektonisch gelungener Ersatzneubau möglich. Beide Optionen garantieren, dass historische Werte erhalten und zugleich höchste Wohnansprüche erfüllt werden.
BAUBESCHREIBUNG & GENEHMIGUNG:
Das unter Denkmalschutz stehende Einzelgebäude in Dresden-Seidnitz, blickt auf eine lange Geschichte zurück: Ursprünglich als Pferde-Ausstellungsgebäude im Umfeld der traditionsreichen Galopprennbahn errichtet, präsentiert es sich heute in einem sanierungsbedürftigen Zustand mit 100 % Leerstand.
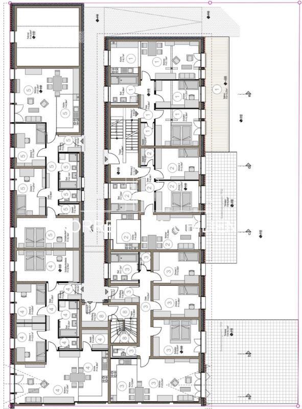
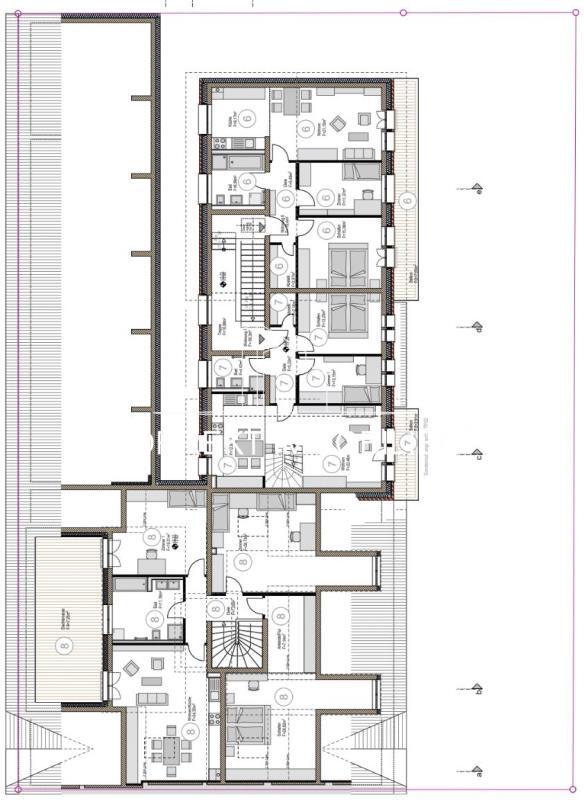
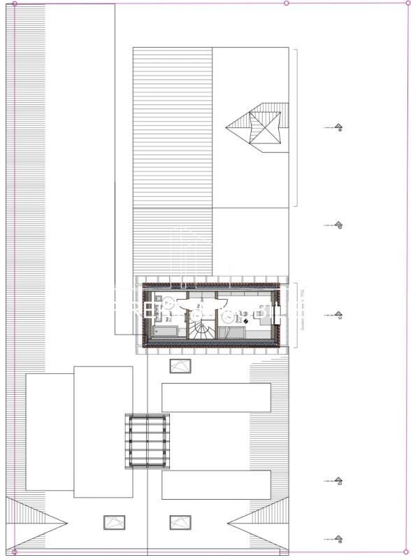
Mit der bereits vorliegenden Baugenehmigung bietet sich nun die seltene Chance, das Ensemble nachhaltig zu revitalisieren und durch einen Ersatzneubau mit insgesamt 8 hochwertigen Wohneinheiten, 8 Pkw-Stellplätzen in eine zukunftsweisende Nutzung zu führen.
Eine Abgeschlossenheitsbescheinigung liegt bereits vor. Sämtliche Maßnahmen werden in enger Abstimmung mit dem Landesamt für Denkmalpflege sowie den Archäologiebehörden durchgeführt.
GEPLANTE UMSETZUNG:
Das genehmigte Bauvorhaben sieht die Errichtung eines stilvollen Wohnhauses mit insgesamt 824,11 m² Wohnfläche vor.
o 8 komfortable Wohneinheiten, zum Teil mit großzügigen Dachterrassen
o Vollwertiges Kellergeschoss mit Abstellräumen
o Hochwertige Fassadengestaltung im Einklang mit der denkmalgeschützten Bausubstanz
o Moderne Grundrisse mit lichtdurchfluteten Wohnbereichen
Durch die Kombination aus denkmalgeschützter Substanz und qualitätsvoller Neubebauung entsteht ein Wohnquartier, das historischen Charme mit modernem Wohnkomfort vereint.
HIGHLIGHTS:
o Historisches Einzeldenkmal als Sanierungs- oder Neubauprojekt mit Seltenheitswert
o Anspruchsvolle Architektur mit 3- und 4-Raum-Wohnungen, Balkonen und Terrassen
o Jede Einheit mit eigenem Kellerabteil und Pkw-Stellplatz
o Fahrradraum mit abschließbaren Ladepunkten für E-Bikes
o KfW-Effizienzhaus 55 EE WPB
o Hochwertige Holzfenster mit Dreifachverglasung (U-Wert = 0,80 W/m²K)
o Komfort-Lüftungsanlage mit Wärmerückgewinnung
o Umweltfreundliche Fernwärmeversorgung
o Fußbodenheizung mit Raumthermostatregelung
o Hochwertiger Vinylboden und großformatige Fliesen
o Hochwertige Marken-Sanitärausstattung (u.a. VIGOUR/GEBERIT)
o Glasfaser- und TV-Anschluss, Videosprechanlage
o Balkone und Terrassen in Holzbauweise, attraktive Außenanlagen
o Naturschieferdach in Deutscher Deckung, professionelle Schall- und Wärmedämmung
o Fünf Jahre gesetzliche Gewährleistung ab Abnahme
HINWEISE FÜR UNTERLAGEN:
Gern stellen wir Ihnen den vollständigen Datenraum aller Objektunterlagen samt Planunen und Genehmigungen zur Verügung.
Die sächsische Landeshauptstadt Dresden liegt im Südosten des Freistaates Sachsen, nahe der Grenzen zu Polen und Tschechien. Geprägt von der Elblandschaft und umgeben von den Ausläufern des Osterzgebirges, der Lausitzer Granitplatte und des Elbsandsteingebirges bietet die Stadt eine einzigartige Verbindung von Natur und urbanem Leben.
Mit rund 540.000 Einwohnern ist Dresden die zwölftgrößte Stadt Deutschlands und zugleich politisches, kulturelles und wirtschaftliches Zentrum Sachsens. Seit ihrer ersten urkundlichen Erwähnung im Jahr 1206 entwickelte sich die Stadt zur kurfürstlichen und später königlichen Residenz. Heute gilt Dresden mit seinen renommierten Kunstsammlungen, Hochschulen und staatlichen Kultureinrichtungen als ein führender Standort in Mitteldeutschland.
Dresden zählt zu den attraktivsten Städten Deutschlands und vereint barocke Architektur, reiche Kultur, beeindruckende Natur und modernes Stadtleben. Die historische Altstadt mit weltbekannten Sehenswürdigkeiten wie der Frauenkirche, dem Zwinger und der Semperoper zieht jährlich Besucher aus aller Welt an. Museen, Theater, Konzerte, Festivals und eine lebendige Kunstszene bieten ein vielfältiges kulturelles Angebot.
Dank der idyllischen Lage an der Elbe, zahlreicher Parks und der Nähe zur Sächsischen Schweiz genießen die Bewohner Dresdens eine außergewöhnlich hohe Lebensqualität. Die Stadt punktet mit Familienfreundlichkeit, guter Infrastruktur, dynamischer Wirtschaft sowie günstigen Lebenshaltungskosten. Auch die hervorragende Verkehrsanbindung sorgt dafür, dass man schnell in der Natur oder in anderen Metropolen ist.
Wegen seiner barocken Prachtbauten, mediterranen Architektur und der reizvollen Lage an der Elbe trägt Dresden den Beinamen "Elbflorenz". Diese Verbindung aus reicher Geschichte, kultureller Vielfalt und hoher Lebensqualität macht Dresden zu einem der begehrtesten Wohn- und Investitionsstandorte Deutschlands.
MIKROLAGE:
Das Objekt befindet sich im Stadtteil Seidnitz/Dobritz, im Südosten Dresdens und Teil des beliebten Stadtbezirks Blasewitz. Die Lage verbindet historische Tradition mit urbanem Wohnkomfort und bietet gleichzeitig kurze Wege in die Natur.
Seidnitz ist weit über die Stadtgrenzen hinaus bekannt durch die Galopprennbahn Dresden-Seidnitz, eine der ältesten und traditionsreichsten Pferderennbahnen Deutschlands. Die denkmalgeschützte Anlage mit großzügigen Grünflächen und historischen Gebäuden dient nicht nur als Veranstaltungsort für spannende Renntage, sondern auch für Konzerte, Sportereignisse und Familienfeste. Die parkähnliche Umgebung lädt zum Spazieren, Joggen und Verweilen ein und verleiht dem Quartier eine ganz besondere Wohn- und Freizeitqualität.
Die Infrastruktur ist hervorragend: Mehrere Straßenbahn- und Buslinien sorgen für eine schnelle Anbindung in die Innenstadt, während die S-Bahn-Haltepunkte Dobritz und Reick (S1, S2) den Anschluss an das Umland garantieren. Insgesamt verfügt der Stadtteil über 14 Straßenbahn- und 27 Bushaltestellen - eine ausgezeichnete ÖPNV-Vernetzung, die urbane Mobilität einfach macht.
Darüber hinaus befinden sich Einkaufsmöglichkeiten, Schulen, Kindertagesstätten sowie Einrichtungen des täglichen Bedarfs in unmittelbarer Nähe. Dank dieser idealen Kombination aus urbaner Infrastruktur, hoher Lebensqualität und grüner Umgebung gilt Seidnitz/Dobritz als attraktiver Wohnstandort mit großem Entwicklungspotenzial.
WICHTIGER HINWEIS:
Eine Bearbeitung Ihrer Anfrage ist uns von unserem Auftraggeber (Verkaeufer) nur gestattet, wenn Sie uns mindestens folgende Kontaktdaten bekannt geben:
- Name
- Vorname
- Anschrift
- Telefonnummer und / oder E-Mail-Adresse
Dabei ist eine diskrete Behandlung Ihrer Kunden- und Objektdaten bei uns selbstverstaendlich.
Vielen Dank fuer Ihr Verstaendnis.
PROVISION/ COURTAGE:
Die Firma KORREKT IMMOBILIEN GmbH & Co. KG hat im Erfolgsfall einen Provisionsanspruch gegenueber dem Kaeufer in Hoehe von 5,95 % inklusive der gesetzlichen Mehrwertsteuer. Die Provision errechnet sich aus dem beurkundeten Kaufpreis und ist verdient und faellig bei Unterzeichnung des notariellen Kaufvertrages.
Die Provision ist auch faellig, wenn ein Dritter aufgrund unbefugter Weitergabe des Angebotes durch den Angebotsempfaenger einen Kaufvertrag abschließt und wenn der Ankauf ueber eine Tochter-/Beteiligungsgesellschaft bzw. dem Angebotsempfaenger angeschlossene Firma- auch wenn diese anderes firmiert- erfolgt.
Der Maklervertrag mit uns kommt entweder durch schriftliche Vereinbarung oder auch durch die Inanspruchnahme unserer Maklertaetigkeit auf der Basis des Objekt-Exposés und seiner Bedingungen zustande.
HAFTUNGSAUSSCHLUSS:
Saemtliche Angaben in dieser Anzeige sind nach bestem Wissen zusammengestellte Vorabinformationen und bilden den Stand zum Zeitpunkt der Anzeigen-Erstellung ab. Wir uebernehmen keine Gewaehr fuer deren Richtigkeit, Irrtuemer sind vorbehalten. Oeffentliche Aeußerungen oder Angaben aus etwaigen Anzeigen oder im Exposé begruenden ausdruecklich keine Soll-Beschaffenheit des Vertragsgegenstands. Der Adressat der Anzeige muss alle darin enthaltenen Angaben vor Abschluss eines Kaufvertrages selbst ueberpruefen. Aenderungen bleiben vorbehaltlich. Saemtliche Bilder und Quellen von nicht benannten Dritten erhalten Sie auf Anfrage.
Dieses Angebot erfolgt vorbehaltlich eines zwischenzeitlichen Verkaufes. Ein Rechtsanspruch auf einen Kaufvertrag kommt erst durch Gegenzeichnung durch den Eigentuemer zustande.
Ansprechpartner
Mobil: 00491733724267
info@korrektimmobilien.de
Inhaber & Geschäftsführer | Immobilienmakler & DEKRA-zertifizierter Sachverständiger für Immobilienbewertung D1 -
Ich bin damit einverstanden, dass mir Karten von Google angezeigt werden. Es gelten die Datenschutzbedingungen von Google (https://policies.google.com/privacy).
Ich bin einverstanden
